BASED IN
TOTAL SIZE
STARTING FROM
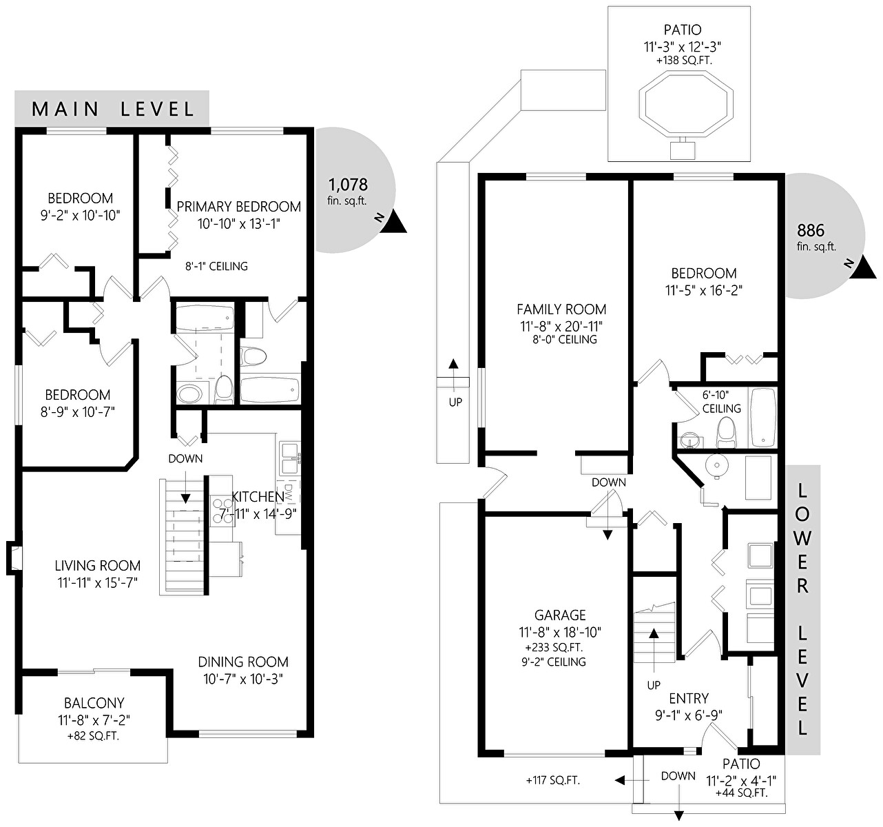
This inviting 4-bedroom + flex, 3-bathroom half duplex offers over 1,900 sq ft of thoughtfully designed living space. Perfectly suited for families or those seeking versatility, the home features main-level living, with all primary bedrooms upstairs—including a spacious primary suite with its own en-suite bathroom.
Downstairs, a flexible bonus room, additional bedroom, full bathroom, and separate entrance provide excellent suite potential or an ideal space for guests, extended family, or a home office.
Abundant natural light fills the interior, complemented by a cozy natural gas fireplace. Step outside to enjoy a private, tiered garden patio and relax in the hot tub, surrounded by tranquility and greenery. A single-car garage and a spacious driveway add extra convenience.
Located in a family-friendly neighborhood, Rock City Elementary is just steps away, and Wellington Secondary is within walking distance. Departure Bay Beach is only a short drive or bike ride away, with nearby parks, trails, and amenities close at hand.
Whether you're a growing family or simply looking for a central, convenient location, this home delivers the comfort, flexibility, and lifestyle you've been searching for.
Lot Size
Unit Size
Bedrooms
Bathrooms
I am committed to assisting our community and clients through collaboration with a team of seasoned professionals. In order to facilitate a seamless transition for your next move, we actively invest in and employ innovative marketing and advertising strategies across diverse platforms. This approach enhances our visibility with local, provincial, and international buyers and investors. Please do not hesitate to contact me if there is anything I can assist you with.
Best regards,
Jayden
Call Us
Email Us
Jayden Vo PREC
Please provide your details below and someone from our team will connect with you to book a private tour of the property.




